2КД 3.36
Характеристики изделия:
| Параметр | Значение |
|---|---|
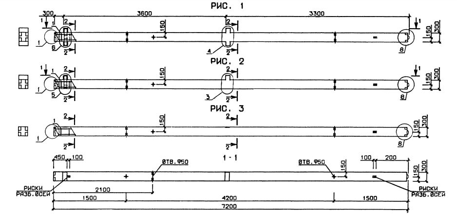
| длина | 7200 мм |
| ширина | 300 мм |
| высота | 600 мм |
| масса | 1780 кг |
| нормативный документ | Серия 1.020.1-3пв |
Цена:
Рассчитать стоимость2КД 3.36 Колонны двухконсольные Серия 1.020.1-3пв.
| Параметр | Значение |
|---|---|
| длина | 7200 мм |
| ширина | 300 мм |
| высота | 600 мм |
| масса | 1780 кг |
| нормативный документ | Серия 1.020.1-3пв |
2КД 3.36 Колонны двухконсольные Серия 1.020.1-3пв.