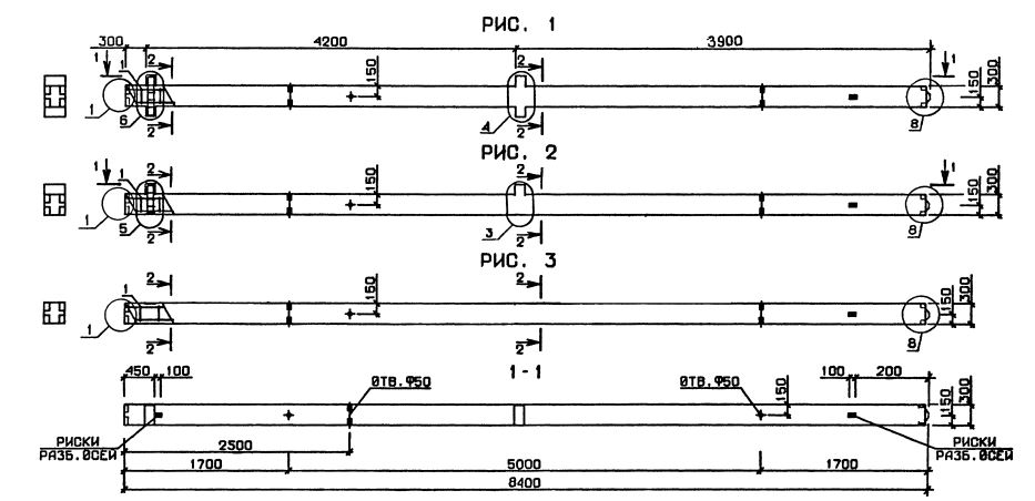
2КО 3.42

Чертеж изделия:
Характеристики изделия:
ПараметрЗначение
длина8400 мм
ширина300 мм
высота450 мм
масса2010 кг
нормативный документСерия 1.020.1-3пв

2КО 3.42  Колонны одноконсольные Серия 1.020.1-3пв.