ПГ 53.15 панели перегородки

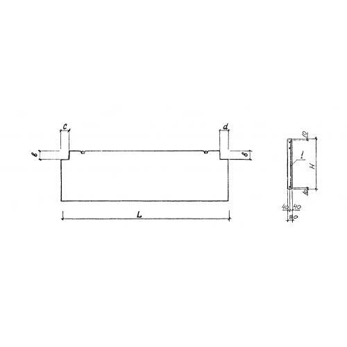
Чертеж изделия:
Характеристики изделия:
ПараметрЗначение
длина5260 мм
ширина80 мм
высота1485 мм
масса990 кг
нормативный документСерия 1.030.9-2

ПГ 53.15   Перегородки панельные зданий промышленных и сельскохозяйстыенных предприятий Серия 1.030.9-2.