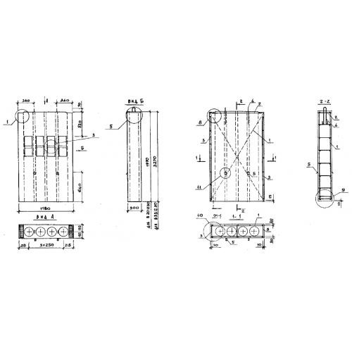
В 20-12-30 вентиляционные блоки
Характеристики изделия:
| Параметр | Значение |
|---|---|
| длина | 1180 мм |
| ширина | 300 мм |
| высота | 1970 мм |
| масса | 1115 кг |
| нормативный документ | Серия 1.034.1-1/90 |
Цена:
Рассчитать стоимостьВ 20-12-30 Вентиляционные блоки самонесущие Серия 1.034.1-1/90.
