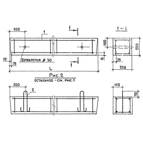
5ПБ 36 перемычки брусковые

Чертеж изделия:
Характеристики изделия:
ПараметрЗначение
длина3630 мм
ширина250 мм
высота220 мм
масса500 кг
нормативный документСерия 1.038.1-1

5ПБ 36  Перемычки брусковые Серия 1.038.1-1.