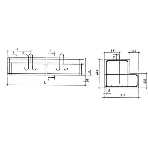
8ПГ 60 перемычки балочные

Чертеж изделия:
Характеристики изделия:
ПараметрЗначение
длина5960 мм
ширина510 мм
высота440 мм
масса2917 кг
нормативный документСерия 1.038.1-1

8ПГ 60  Перемычки балочные Серия 1.038.1-1.