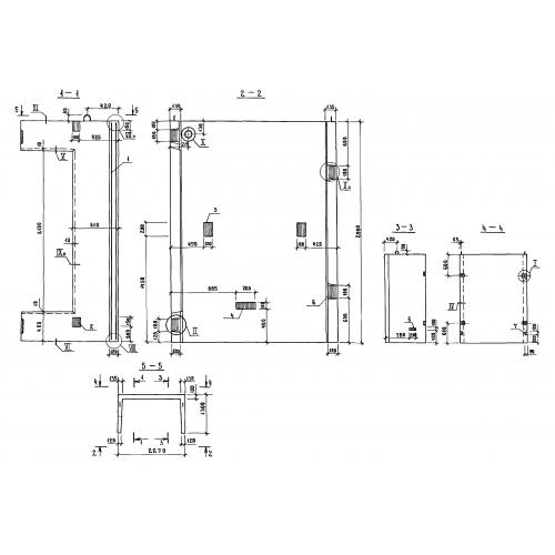
БШЛ 100-30 блок шахты лифта доборный
Характеристики изделия:
| Параметр | Значение |
|---|---|
| длина | 2270 мм |
| ширина | 1300 мм |
| высота | 2980 мм |
| масса | 3800 кг |
| нормативный документ | Серия 1.089.1-1 |
Цена:
Рассчитать стоимостьБШЛ 100-30 Блоки шахт лифтов Серия 1.089.1-1.
| Параметр | Значение |
|---|---|
| длина | 2270 мм |
| ширина | 1300 мм |
| высота | 2980 мм |
| масса | 3800 кг |
| нормативный документ | Серия 1.089.1-1 |
БШЛ 100-30 Блоки шахт лифтов Серия 1.089.1-1.
