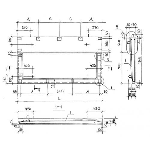
ПБК 42.13

Чертеж изделия:
Характеристики изделия:
ПараметрЗначение
длина4190 мм
ширина1340 мм
высота150 мм
вес1680 кг
серия1.137.1 КЛ-1

ПБК 42.13 Плиты балконов консольные по серии 1.137.1 КЛ-1.