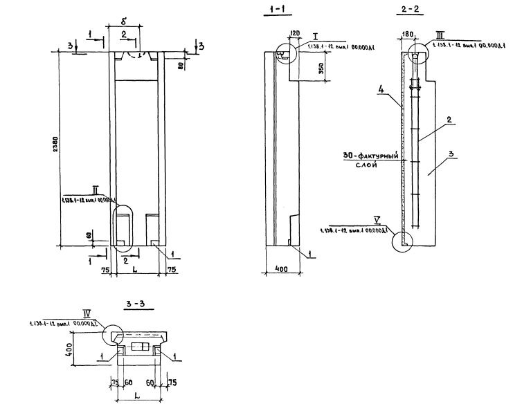
СБ 5.5-8.24.4-п-1

Чертеж изделия:
Характеристики изделия:
ПараметрЗначение
длина815 мм
ширина400 мм
высота2380 мм
масса1210 кг
нормативный  документСерия 1.138.1-12

Серия 1.138.1-12

СБ – стеновые блоки наружных стен, тип блока 5 – парапетный блок.