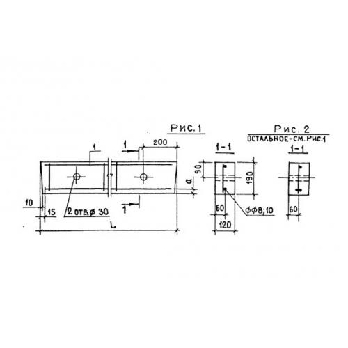
БУ 13

Чертеж изделия:
Характеристики изделия:
ПараметрЗначение
длина1300 мм
ширина120 мм
высота190 мм
вес74 кг
серия1.139-1

БУ 13 Перемычки брусковые усиленные по серии 1.139-1.