Б 19

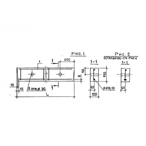
Чертеж изделия:
Характеристики изделия:
ПараметрЗначение
длина1950 мм
ширина120 мм
высота190 мм
вес110 кг
серия1.139-1

Б 19 Перемычки брусковые по серии 1.139-1.