КНК 68.15

Чертеж изделия:
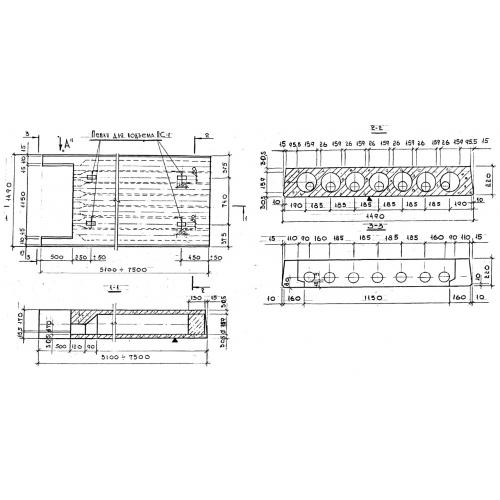
Характеристики изделия:
ПараметрЗначение
длина6800 мм
ширина1490 мм
высота220 мм
вес2995 кг
серия1.141.1 КР-3

КНК 68.15 Панели с круглыми пустотами с консольными выпускными ребрами по серии 1.141.1 КР-3.