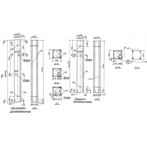
СВА
Характеристики изделия:
| Параметр | Значение |
|---|---|
| длина | 3120 мм |
| ширина | 400 мм |
| высота | 400 мм |
| вес | 1300 кг |
| серия | 1.435-3 |
Цена:
Рассчитать стоимостьСВА Стойки автомобильных ворот по серии 1.435-3.
| Параметр | Значение |
|---|---|
| длина | 3120 мм |
| ширина | 400 мм |
| высота | 400 мм |
| вес | 1300 кг |
| серия | 1.435-3 |
СВА Стойки автомобильных ворот по серии 1.435-3.
