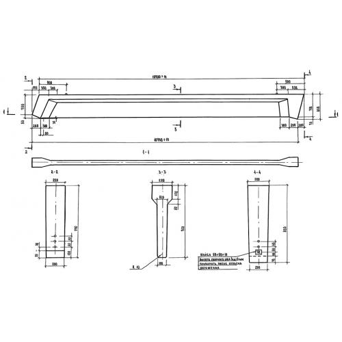
БС 10.5

Чертеж изделия:
Характеристики изделия:
ПараметрЗначение
длина10995 мм
ширина220 мм
высота820 мм
вес2880 кг
серия1.862.1-8.94

БС 10.5 Балки стропильные по серии 1.862.1-8.94.