СНВ

Чертеж изделия:
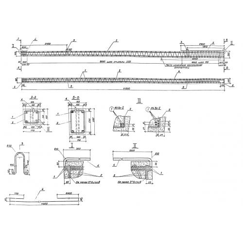
Характеристики изделия:
ПараметрЗначение
длина11000 мм
ширина185 мм
высота280 мм
вес1125 кг
серия3.407-101

СНВ Стойки напряженные вибрированные по серии 3.407-101.