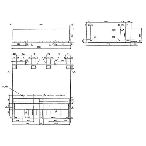
Т 150.60 блок тротуарный

Чертеж изделия:
Характеристики изделия:
ПараметрЗначение
длина2990 мм
ширина2570 мм
высота680 мм
вес2500 кг
серия3.503.1-81

Т 150.60 Блоки тротуарные по серии 3.503.1-81.