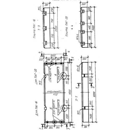
ПД 60-20-18

Чертеж изделия:
Характеристики изделия:
ПараметрЗначение
длина6000 мм
ширина2000 мм
высота180 мм
масса5400 кг
нормативный документСерия 3.506-3

ПД 60-20-18  Плиты аэродромных покрытий по Серии 3.506-3.