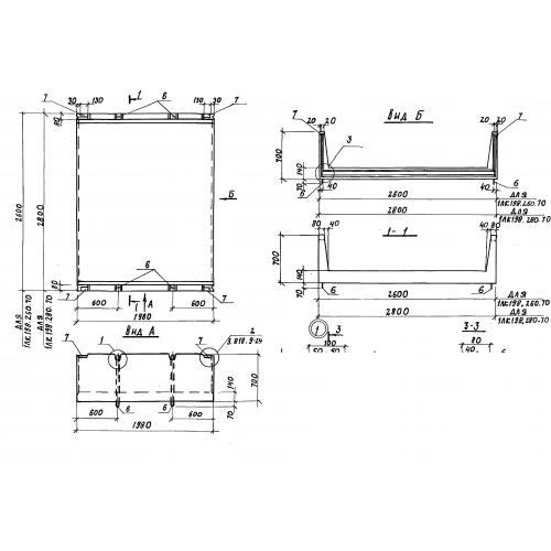
ЛК 198.260.70

Чертеж изделия:
Характеристики изделия:
ПараметрЗначение
длина1980 мм
ширина2600 мм
высота700 мм
вес2360 кг
серия3.818.9-2

ЛК 198.260.70 Лотки для каналов навозоудаления по серии 3.818.9-2.