П 6

Чертеж изделия:
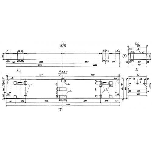
Характеристики изделия:
ПараметрЗначение
длина6000 мм
ширина990 мм
высота300 мм
масса4150 кг
нормативный документСерия 3.820.1-29

П 6  Плитные блоки служебного моста по Серии 3.820.1-29.