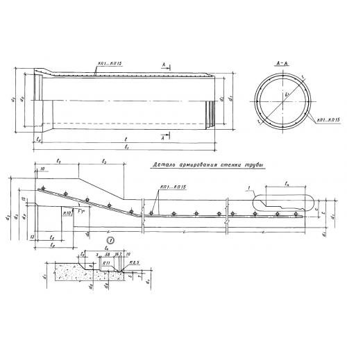
ТНН 80.50
Характеристики изделия:
| Параметр | Значение |
|---|---|
| длина | 5155 мм |
| ширина | 1150 мм |
| высота | 1150 мм |
| вес | 3690 кг |
| серия | 3.901.1-15 |
Цена:
Рассчитать стоимостьТНН 80.50 Трубы низконапорные центобежнопрокатные по серии 3.901.1-15.
| Параметр | Значение |
|---|---|
| длина | 5155 мм |
| ширина | 1150 мм |
| высота | 1150 мм |
| вес | 3690 кг |
| серия | 3.901.1-15 |
ТНН 80.50 Трубы низконапорные центобежнопрокатные по серии 3.901.1-15.
