ВШ-7 вентшахты

Чертеж изделия:
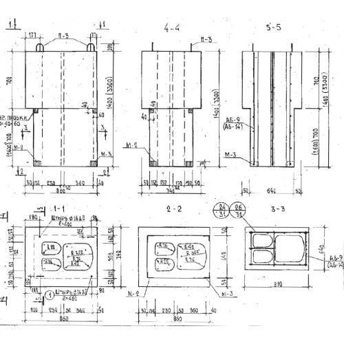
Характеристики изделия:
ПараметрЗначение
длина860 мм
ширина740 мм
высота3300 мм
масса1538 кг
нормативный документСерия Б1.134.1-7

ВШ-7 Армированные вентиляционные шахты из бетона по Серии Б1.134.1-7.