С

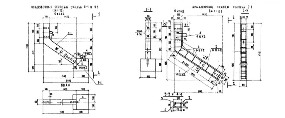
Чертеж изделия:
Характеристики изделия:
ПараметрЗначение
длина2260 мм
ширина200 мм
высота150 мм
масса200 кг
нормативный документТПР 503-0-17

С  Столбы железобетонные ТПР 503-0-17.